Design tourism / Published on May 25, 2021
Share to
INT. CITY:
Montreal Executive Golf Pavilion
Fore! Good news, folks: Outdoor sporting activities are permitted across the province. And since summer is just around the corner, why not round up a foursome and get ready for tee time!
Time to meet up at the Montreal’s Executive Golf Pavilion, designed by Architecture49, and enjoy a day outside on the main golf course, the range or the p’tit golf are now open for the 2021 season.
Text: Juli Pisano. Photos: Stéphane Brügger
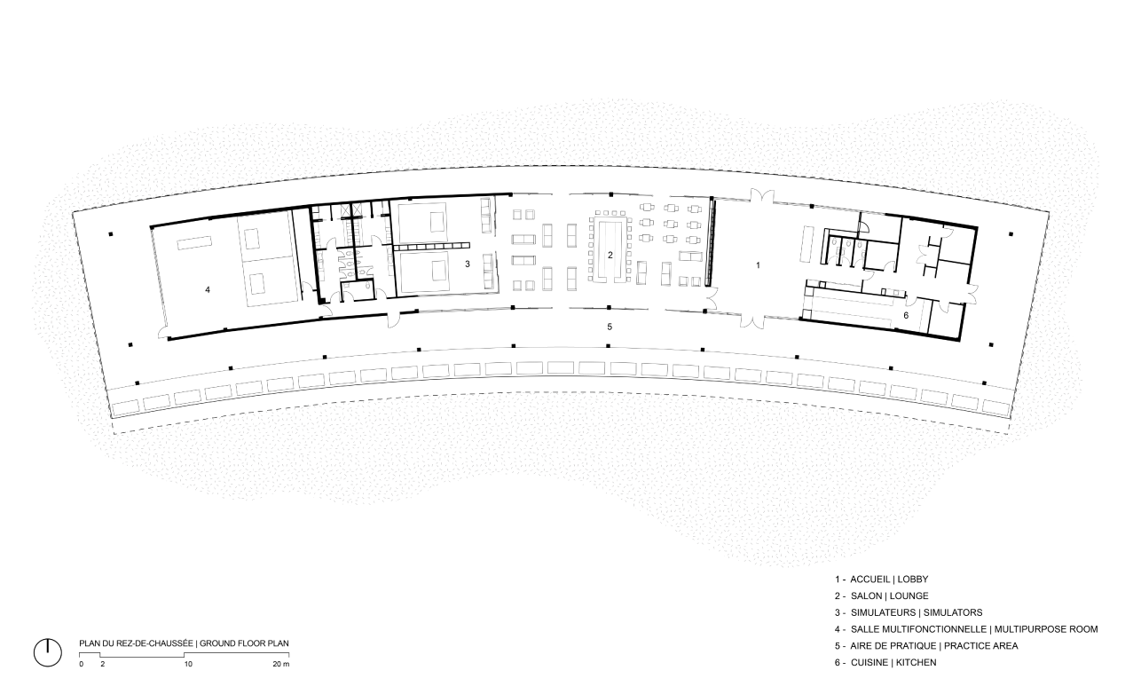
FORE ! GOLF AND DESIGN
The iconic and sophisticated Montreal Executive Golf Pavilion, designed by Architecture49, leaves no one indifferent in the face of its breathtaking harmony with nature and strong geometric rigour.
Design: Architecture 49, Architecture49
Wellness, Training, Fitness Centre
2019 GRANDS PRIX DU DESIGN Awwards
The cross-laminated timber roofing floats above the practice field, sharing its luscious curves. The pavilion’s abundant windows favour continuity amongst interior and exterior spaces and create a place for golfers to practise, socialize and idyllically contemplate in style.


The interior spaces stand out through the predominance of wood, showcased in the cross-laminated timber structure and burnt wood and maple wall coverings.


Hosting a kitchen, a restaurant, a bar, a boutique, golf simulators, offices and technical rooms, the pavilion adapts itself to varying seasons and functions.


Notice its refreshing simplicity, its balance of proportions and its effective lighting, come day or night, and, fore!


› Visit: golfexecutifmontreal.com
Store, info et reservations
(514) 767-1855
Opening Hours
Monday – Friday: 8am to 9pm
Saturday – Sunday : 8am to 9pm
› Consult: architecture49.com